- Woonoppervlakte
- Circa 181 m²
- Perceeloppervlakte
- Circa 569 m²
- Bouwjaar
- Gebouwd in 1991
- Aantal kamers
- 4 kamers (3 slaapkamers)
Vrijstaand wonen aan de Kerkstraat 18 in Rucphen: het huis waar je langer wilt blijven
Wonen in een vrijstaand huis midden in Rucphen, met alle ruimte voor je gezin? Welkom op Kerkstraat 18! Dit is zo’n plek waar je bij binnenkomst meteen bedenkt: ja, hier kunnen we wel oud worden. Of je nu groter wilt gaan wonen, dichter bij het groen of juist flexibeler wilt werken – deze woning heeft écht álles in huis. Zet alvast een dikke streep onder deze kans, want huizen als deze komen zelden te koop.
Royale ruimtes voor het hele gezin
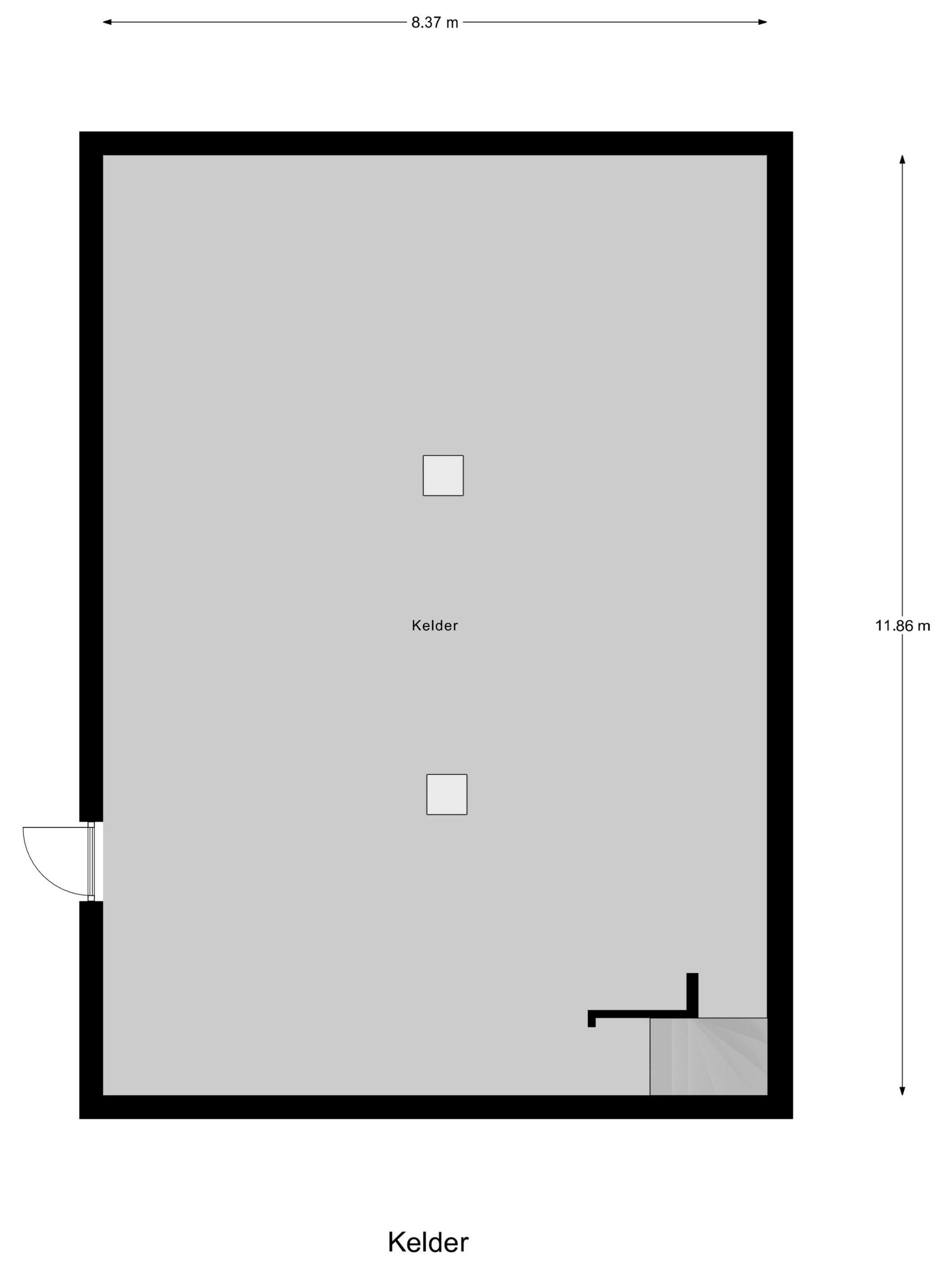
Laten we beginnen bij de ruimte. Met een perceel van maar liefst 569 m2 kun je hier ongekend royaal wonen. De woonoppervlakte wordt bovendien aangevuld door een enorme kelder van 100m2 – schrik niet, het is echt waar! Hoeveel huizen ken je met zo’n kelder? Je kunt er een fitnessruimte van maken, een speelparadijs voor de kinderen, of zelfs een wijnkelder. Je zegt het maar!
Beneden vind je ook een multifunctionele kamer. Handig, want hij past zich moeiteloos aan jouw situatie aan: werkplek, slaapkamer, chillkamer, hobbyruimte, je kunt het zo gek niet bedenken. Lekker flexibel toch?
Een tuin die het buitenleven omarmt
De achtertuin van 226 m2 nodigt uit tot buiten leven. Kinderen kunnen lekker voetballen of ravotten, terwijl jij ontspannen zit bij de koffie of de barbecue alvast op temperatuur brengt. Door de ligging van de tuin geniet je volop van privacy én zon: ideaal voor lange zomeravonden. Groen, ruim en helemaal naar je eigen smaak aan te leggen.
Parkeren en klussen: alles onder één dak
Ben je in het bezit van een auto, of twee? Geen probleem! De halfopen garage is namelijk zo om te bouwen tot een volwaardige, afgesloten garage: ideaal als je binnen wilt parkeren of extra bergruimte zoekt. Van fietsen tot gereedschap en kinderstepjes, je hoeft het niet meer ergens tussen te proppen. Hoe fijn is dat!
Robuuste bouw en energielabel B
Deze eengezinswoning is gebouwd in 1991, solide en goed onderhouden. Met energielabel B en 16 zonnepanelen ben je daarnaast verzekerd van relatief lage energiekosten, wat in deze tijd mooi meegenomen is. Je bent er helemaal klaar voor, met voldoende comfort en duurzaamheid.
Het gemak van wonen in Rucphen
Kerkstraat 18 ligt rustig, en toch vlakbij het centrum van Rucphen. Even naar de supermarkt, de school of een rondje wandelen – het kan allemaal, zonder gedoe en met alles om de hoek. Je woont hier in een gezellige buurt waar kinderen nog gewoon op straat spelen, buren elkaar groeten en iedereen elkaar een beetje kent. Dat voelt als thuiskomen, elke dag weer.
Voor wie is deze parel perfect?
Ben je toe aan iets groters? Gaat je gezinsleven ineens sneller dan je dacht, of wil je werk en privé moeiteloos combineren? Deze woning is uitermate geschikt voor gezinnen, maar ook voor doorgroeiers die graag wat reuring en ruimte zoeken, zonder het knusse karakter van een dorp kwijt te raken.
Enthousiast geworden? Neem snel contact op!
Kortom: Kerkstraat 18 is een huis waar je direct verliefd op kunt worden. Alles klopt: ruimte, ligging, tuin, mogelijkheden én een flinke scheut karakter. Wacht dus niet te lang, want deze kans is er één uit duizenden.
Nieuwsgierig geworden? Bel of mail en kom gezellig langs – we laten je met plezier alles zien! Want zeg nou zelf: zie jij jezelf hier al zitten, thuis op Kerkstraat 18 in Rucphen? Lees de volledige omschrijving
Overdracht
- Vraagprijs
- € 650.000 k.k.
- Status
- Verkocht
Bouw
- Object type
- Eengezinswoning, vrijstaande woning
- Soort bouw
- Bestaande bouw
- Bouwjaar
- 1991
- Soort dak
- Zadeldak bedekt met pannen
Oppervlakte en inhoud
- Woonoppervlakte
- 181 m²
- Perceeloppervlakte
- 569 m²
- Inhoud
- 1.058 m³
- Gebouwgeb. buitenruimte
- 33 m²
Indeling
- Aantal kamers
- 4 kamers (3 slaapkamers)
- Aantal badkamers
- 1 badkamer
- Badkamervoorzieningen
- Bidet, douche, dubbele wastafel, en ligbad
- Aantal woonlagen
- 2 woonlagen
- Voorzieningen
- Glasvezelkabel, rookkanaal, TV kabel, en zonnepanelen
Energie
- Energielabel
- B
- Energielabel registratie
- 21-12-2020
- Isolatie
- Dakisolatie, muurisolatie, vloerisolatie en volledig geïsoleerd
- Verwarming
- Cv-ketel en open haard
- Warm water
- Cv-ketel
- Cv ketel
- Atag (gas gestookt combiketel uit 2016, eigendom)
Buitenruimte
- Tuin
- Achtertuin
- Afmetingen achtertuin
- 226 m² (12,07 meter diep en 18,71 meter breed)
- ligging tuin
- Gelegen op het westen en bereikbaar via achterom
Bergruimte
- Schuur / berging
- Aangebouwde stenen berging
- Voorzieningen
- Elektra
Parkeergelegenheid
- Soort parkeergelegenheid
- Op eigen terrein
Energieverbruik in Rucphen
Energielabel deze woning
Energielabel B
Publicatie energielabel: 21-12-2020
Stroomverbruik per jaar
(Gemiddelde vrijstaande woning in Rucphen)
Gasverbruik per jaar
(Gemiddelde vrijstaande woning in Rucphen)
* Cijfers zijn afkomstig van het CBS en bedoeld als indicatie en kunnen verschillen voor deze woning
Indicatie hypotheeklasten
Eigen inleg:
Spaargeld / overwaarde
Rente:
Laagste 10-jaars rente
Laagste 10-jaars rente
2,75% - Centraal Beheer Groen... - NHG
3,04% - Argenta Groen Hypothee... - 80%
Laagste 20-jaars rente
3,18% - Argenta Groen Hypothee... - NHG
3,39% - Argenta Groen Hypothee... - 80%
Laagste 30-jaars rente
3,35% - Argenta Groen Hypothee... - NHG
3,56% - Argenta Groen Hypothee... - 80%
Hypotheek:
Bruto maandlasten: € 0 p/m
Netto maandlasten: € 0 p/m
Hoe berekenen we dit?
Het rentepercentage is gebaseerd op de laagste 10 jaars vaste rente voor één hypotheekdeel. De vermelde rente (3.04% zonder NHG) is gecontroleerd op 11-11-2025. Deze berekening is gebaseerd op een annuïteitenhypotheek die volledig wordt afgelost, waarbij de maandlasten gedurende de gehele looptijd gelijk blijven. De werkelijke rente en netto maandlasten kunnen variëren, afhankelijk van uw persoonlijke situatie en de hypotheekverstrekker. Raadpleeg een financieel adviseur voor een nauwkeurige berekening en advies. Aan deze berekening kunnen geen rechten worden ontleend; het dient enkel als indicatie.
Documentatie
Kadastrale kaart
Leefomgeving
Brochure
BAG uittreksel
Plattegronden PDF
Lijst van zaken
Vragenlijst
Energielabel
Bekijk onze website
Bezichtiging
Bod uitbrengen
Waardebepaling
Zoekopdracht
Alles downloaden
Zonnegrenzen bekijken
Op de kaart
Inwoners in Rucphen
Cijfers voor postcodegebied 4715
- Totaal aantal inwoners
- 4710 inwoners
- Mannen
- 50%
- Vrouwen
- 50%
Inwoners in Rucphen
Cijfers voor postcodegebied 4715
- tot 15 jaar
- 13%
- 15 tot 25 jaar
- 10%
- 25 tot 35 jaar
- 20%
- 45 tot 65 jaar
- 32%
- 65 en ouder
- 26%
Huishoudens in Rucphen
Cijfers voor postcodegebied 4715
- Eenpersoons zonder kinderen
- 26%
- Meerpersoons zonder kinderen
- 38%
- Huishoudens zonder kinderen
- 64%
Huishoudens in Rucphen
Cijfers voor postcodegebied 4715
- Huishoudens met één kind
- 5%
- Huishoudens met meerdere kinderen
- 30%
- Huishoudens met kinderen
- 35%
Woningen in Rucphen
Cijfers voor postcodegebied 4715
- Woningen voor 1945
- 6%
- Woningen tussen 1945 en 1965
- 17%
- Woningen tussen 1965 en 1975
- 22%
- Woningen tussen 1975 en 1985
- 18%
- Woningen tussen 1985 en 1995
- 17%
Woningen in Rucphen
Cijfers voor postcodegebied 4715
- Woningen tussen 1995 en 2005
- 8%
- Woningen tussen 2005 en 2015
- 11%
- Woningen na 2015
- 1%
- Huurwoningen
- 30%
- Koopwoningen
- 70%
Overige in Rucphen
Cijfers voor postcodegebied 4715
- Gemiddelde WOZ waarde
- € 265.000,-
- Personen onder de 65 met uitkering
- Niet beschikbaar
Overige in Rucphen
Cijfers voor postcodegebied 4715
- Adressen per km²
- 432
- Stedelijkheid (schaal 1 op 5)
- 20%
Korte feiten over Rucphen
Rucphen is een gemeente tussen Roosendaal en Etten-Leur in de Nederlandse provincie Noord-Brabant. De gemeente telt 23.333 inwoners (31 januari 2022, bron: CBS) en heeft een oppervlakte van 64,23 km² (waarvan 0,70 km² water).
De Huizenpraktijk
Indien u vragen heeft of u wilt een bezichtiging inplannen, dan kunt u gebruik maken van het formulier hiernaast. Er zal daarna op korte termijn contact met u worden opgenomen.
Contact opnemen
Het voordelige makelaarskantoor
Verkoop, aankoop en waardebepaling bij De Huizenpraktijk
De Huizenpraktijk in Zundert is dé makelaar met een unieke aanpak! Wij hanteren een vast, laag bedrag voor de verkoop of aankoop van je woning, dat eerlijk en realistisch is. Als onderdeel van Backx Assurantiën kunnen we je bovendien adviseren over je nieuwe hypotheek of verzekering.
Wij geloven in een open en eerlijke woningverkoop. Daarom rekenen we een eerlijk en realistisch bedrag dat je zelf mag bepalen na een succesvolle verkoop. Zo houd je geld over om je nieuwe huis in te richten, en zijn wij blij dat we je hebben kunnen helpen.
Wat de reden ook is om je huis te verkopen, je wilt zo snel mogelijk weten waar je aan toe bent. Daarom nemen wij je die zorgen uit handen tegen een laag tarief. Bij ons bepaal je de courtage zelf!
Is jouw huis verkocht dan bepaal jij op dat moment welk percentage je de makelaar gunt. Dit ligt tussen de 0,9% en de 1,6%*
Wat doen wij voor u?
- Woningopname met prijsbepaling in samenspraak;
- Opvragen kadastrale gegevens;
- Professionele foto’s, video, 360 graden foto's;
- Omschrijving maken;
- Inmeten volgens NEN 2580 en plattegronden maken;
- Woning op Funda, Jaap, Huislijn en Pararius;
- Fysieke glossy brochures voor iedere kijker;
- Eigen woningwebsite;
- Promotie via sociale media;
- Tuinbord plaatsen;
- Bezichtigingen coördineren en verzorgen;
- Prijsonderhandelingen met potentiële koper(s);
- Opstellen koopovereenkomst;
- Eindinspectie bij overdracht (meterstanden);
- Coördinatie overdracht notaris.
Nieuwste reviews
-
Berkenlaan 20
Wij zijn ontzettend goed geholpen door de medewerkers van De Huizenpraktijk. We zijn zeer professioneel en vriendelijk geholpen. Zeker een a...
-
de Krijntjes 35
Prijs van de makelaar mocht je zelf bepalen met een variabel courtage tussen de 0.8 en 1.6%. Goede werkwijze en fijne contactmomenten. Ontzo...
-
Paulus Potterstraat 3
Een prima contact met de makelaar ,hadden reeds ervaring met deze makelaar bij aankoop van onze woning 6 jaar geleden en dit was ons zo goed...